Apartment Pionniers

Val Thorens

Centrally located in Europe’s highest ski resort, Apartment Pioneers is a quality apartment perfect for groups of up to 12 looking for amazing value.

The apartment is directly on the piste, you can literally ski up to the door, so absolutely no walking around with heavy ski/snowboard equipment. The residence has a sauna, perfect for relaxing aching muscles after a long day on the slopes.

View a Virtual Tour of the property here: https://my.matterport.com/show/?m=WmQbbpKUad8

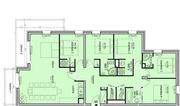
The apartment comprises of:

  • Openplan living, kitchen and dining area with fireplace and balcony access
  • Bedroom 1: Twin room with ensuite shower, washbasin and WC
  • Bedroom 2: Twin room with ensuite shower and washbasin
  • Bedroom 3: Twin room with ensuite shower and washbasin
  • Bedroom 4: Twin room
  • Bedroom 5: Twin room with ensuite shower and washibasin
  • Bathroom with bath and wash basin
  • Two separate WCs
Saturday - Saturday | Winter 2025-26 | Prices Coming Soon | Enquire for Availability!
December 2025 January 2026 February 2026 March 2026 April 2026
06 13 20 27 03 10 17 24 31 07 14 21 28 07 14 21 28 04 11 18 25
Enquire Enquire Enquire Enquire Enquire Enquire Enquire Enquire Enquire Enquire Enquire Enquire Enquire Enquire Enquire Enquire Enquire Enquire Enquire Enquire Enquire

Holiday Accommodation Details

  • Self-Catered Property

  • Val Thorens

Attributes
  • Amount - €1000 payable on arrival

  • Security Deposit Payable on Arrival

  • Self-Catered

  • We Recommend Huski www.hu.ski/partner/meribelchaletaparts

  • Ski in/Ski-out

  • Balcony

  • Fireplace

  • Sauna

  • Open Plan Living Space

  • Large Living Area

  • WiFi

  • Bedlinen

  • Beds Made On Arrival

  • End of Week Clean Included (excluding Kitchen)

  • Free WiFi Internet in Complex

  • Hair Dryer/s Provided

  • Towels Changed Mid-week

  • Towels

  • Private Spa Session - Sauna is free of charge but you must book at reception

  • Credit Card, Debit Card, Cheque, Bank Transfer

  • Payment Accepted in GBP£ Only

  • Available for Winter Ski Holidays

  • You Can Ski From The Property

  • You Can Ski To The Property

  • You Can Ski To & From the Building

  • Arrival After - 5PM

  • Departure Before - 10AM

  • Tourist Tax Payable

  • Distance to Closest Ski Lift - 400 metres to PIonniers lift on skis

  • Distance to Closest Ski Run/Piste - Directly on Voie Lactee piste (easy blue)

  • Distance to Village/Resort Centre - In resort centre

  • Distance to Free Bus Stop - 120 metres

  • Parking Details - €80 per car per week

  • Dishwasher

  • Electric Kettle

  • Microwave

  • Toaster

  • Fully-Equipped Kitchen

  • Electric Stove

  • Coffee Machine - Yes

  • Fridge Type - Fridge freezer

  • Total Number of Bedrooms - 5

  • Maximum Number of Bed Spaces - 12

  • Bedroom 1 - Twin beds (sleeps 2)

  • Bedroom 2 - Twin beds (sleeps 2)

  • Bedroom 3 - Twin beds (sleeps 2)

  • Bedroom 4 - Twin beds (sleeps 2)

  • Bedroom 5 - Twin beds (sleeps 2)

  • Lounge Room - Sofa bed (sleeps 2)

  • Total Number of Bathrooms - 5

  • Bathrooms with Bath - 1

  • Bathrooms with Shower - 4

  • Bathrooms without Toilet - 3

  • Seperate WC - 2

  • No of Seats at Dining Table - 12

  • Wood for Fire Supplied - 1 basket of wood supllied

  • Wood or Gas Fire - Wood

  • Television

  • DVD or Video Player - DVD player

  • Ski Locker

  • Ski Locker Details - Heated

  • Pets Are Not Allowed

  • No Smoking In Property

  • Outdoor Shoes Must Be Removed

  • No Hen or Stag parties

  • Failure to Comply with Maximum Occupancy will Result in Cancellation

  • Apartment

  • Ski-In Ski-Out or Almost